Lilla HOUSE
Progetto di riqualificazione architettonica e ampliamento
di un immobile residenziale per una giovane coppia in Puglia
Antico e contemporaneo, interno ed esterno, luce e ombra.
Contrasti che dialogano armoniosamente in un progetto che ridefinisce i confini spaziali ed emozionali della casa.
Stato: Concluso
Luogo: Manduria, Taranto, Italy
Periodo: 2019 | 2022
Cliente: Privato
In collaborazione con
Strutture & Amministrazione | ing. Paolo Tarantini, Sava [Ta]
Impresa Edile | Ottavio Erario S.n.c., Manduria [Ta]
Impianti | ITEC Impianti di Vincenzo Gennari, Manduria [Ta]
Serramenti & Carpenteria Metallica | Infissi Mancino Maurizio, Sava [Ta]
Lavorazioni Gres | Bat Marm, Fasano [Br]
Forniture | GEA Srl, Francavilla Fontana [Br]
Progetto Vincitore
GEA Design Contest [2021]
PROJECT DESCRIPTION
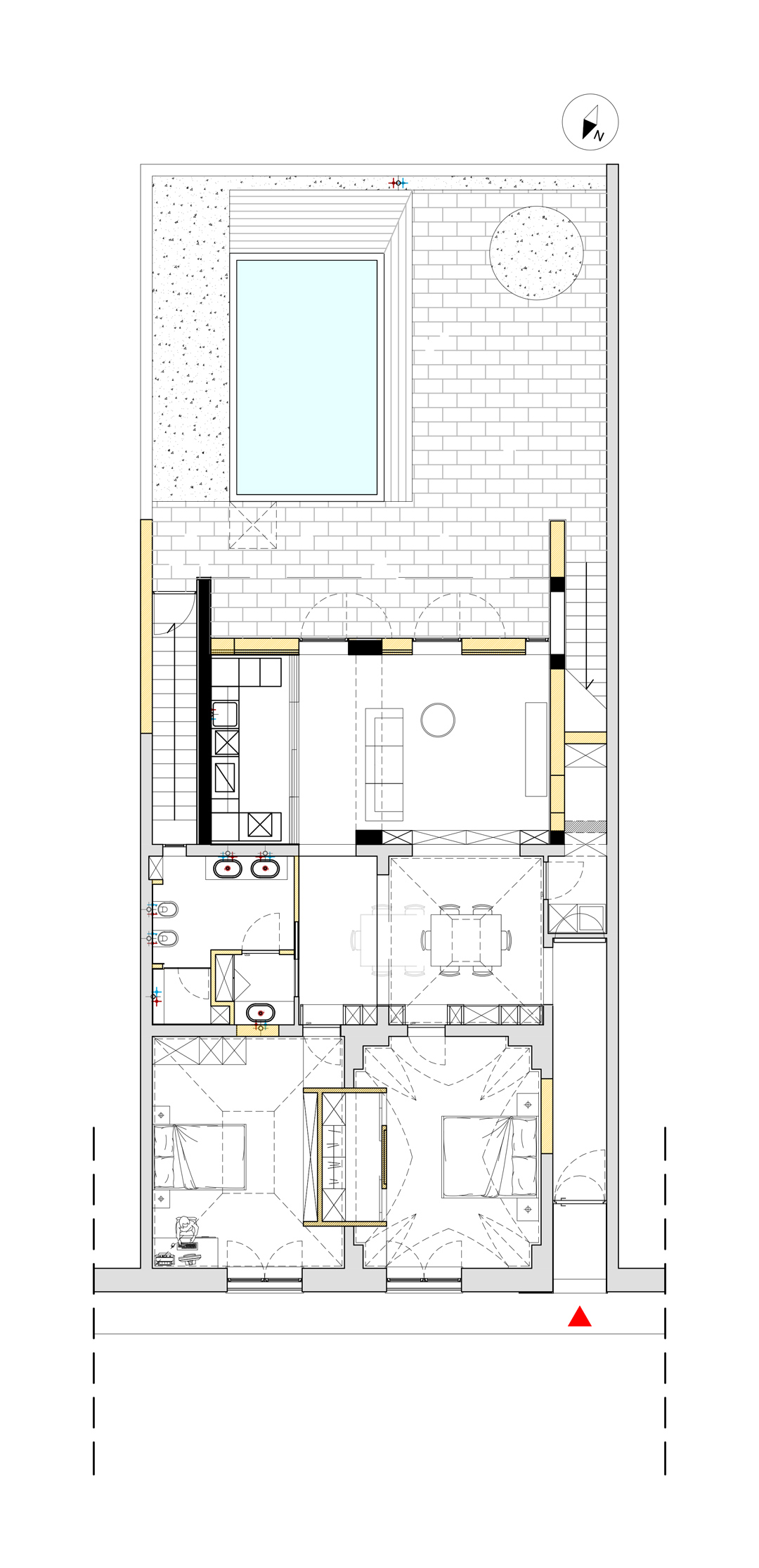
Lo Stato di Fatto
Il fabbricato, accatastato come abitazione di tipo economico A3 e realizzato nei primi decenni del secolo scorso, presentava le peculiarità di un’edilizia locale povera – risultato della sovrapposizione di una moltitudine di interventi effettuati in diverse fasi storiche e spesso basati su ridotte possibilità economiche e privi di autorizzazioni urbanistiche.
La distribuzione funzionale degli spazi non prevedeva aree comuni, eccezione fatta per la sala da pranzo, e sacrificava la porzione di edificio meglio esposta alla luce solare. Le tre camere da letto si presentavano prive di accessi indipendenti e il patio sul prospetto sud risultava privo di autorizzazioni tecniche.
Il Progetto [2019]
La committenza è una giovane coppia con un’intensa vita sociale che si appresta a vivere la prima esperienza di convivenza.
A partire da questo assunto il progetto ha dato risalto alla necessità di spazi ampi e di condivisione. Il perimetro dell’edificio è stato ridefinito (prospetto sud) concedendo la possibilità di ripensare la zona living come ampio open-space. Questa nuova area dell’abitazione ha permesso una completa ri-funzionalizzazione dell’edificio garantendo diverse migliorie, in particolare 1. l’accesso indipendente alle camere da letto 2. un’area bagno più comoda – concepita come una sorta di piccola area benessere 3. una cucina molto più ampia 4. un’area home cinema comoda e suggestiva con affaccio sul giardino 5. una sala da pranzo molto capiente (12 persone) 6. un locale tecnico ricavato nel sottoscala. Il progetto si completa con la ridefinizione delle pavimentazioni esterne, un nuovo accesso al locale cantina e la realizzazione di una piccola piscina scoperta.
Ho immaginato uno spazio libero e aperto
in cui il limite tra interno ed esterno si con-fonde
nel dialogo tra la pietra naturale e la luce accecante dei muri bianchi del Mediterraneo
a












